Ваш город: Тобольск
VK Video
Оставайся в курсе новинок
Амеги и смотри интересные
ролики в VK видео
Присоединиться
VK
Будь в центре событий Амега
и присоединяйся к нашему
сообществу Вконтакте Tg QR
Присоединиться
Tg
Будь в центре событий Амега
и присоединяйся к нашему
telergam-каналу Tg QR
Присоединиться
catalog Каталог продукции
search
Каталог
Материалы
Главная
Exprof

Exprof

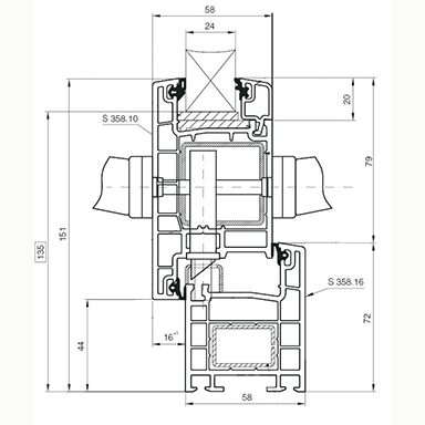
Профиль Exprof Practica 58 (наружное открывание)
Профиль Exprof Practica 58 (наружное открывание)
Дверная створка наружного открывания обладает повышенной жесткостью за счет мощного замкнутого армированиямм и большого числа поперечных перегородок во внутренних камерах.
Технические характеристики
Ширина профиля (монтажная глубина) (мм) 58
Цвет профиля белый
Срок службы 60 лет
Класс профиля (по толщине внешних стенок) А (створка), Б (рама и импост)
Рецептура ПВХ свинцовая
Варианты открывания наружное
Цвет уплотнителя черный
Страна-технолог Россия
Город-производитель Тюмень
Профиль Exprof 70 (наружное открывание)
Профиль Exprof 70 (наружное открывание)

Дверная створка наружного открывания обладает повышенной жесткостью за счет мощного замкнутого армированиямм и большого числа поперечных перегородок во внутренних камерах.

Жесткая конструкция гарантирует равномерность прижима притвора по всему периметру створки. Прочность и взломоустойчивость дверной конструкции дополняется противовзломным фурнитурным пазом с удалением оси 13 мм.

 Подходит для изготовления:
  • входных дверей, групп
  • двустворчатых, штульповых
  • ламинированных конструкций
  • трапеций, треугольников
  • арок (только из профиля рамы!)
  • фальш-переплетов, шпросов
  • заполнения 32, 40, 42, 44 мм

Технические характеристики
Ширина профиля (монтажная глубина) (мм) 70
Цвет профиля белый
Срок службы 60 лет
Класс профиля (по толщине внешних стенок) А (створка), Б (рама и импост)
Рецептура ПВХ свинцовая
Варианты открывания наружное
Цвет уплотнителя черный
Сопротивление теплопередаче с армир. (м²*°С/Вт) 0,80
Количество камер 4 – створка, 5 – рама
Толщина заполнения (мм) 32, 40, 42, 44
Высота профиля (рама+створка) (мм) 167
Страна-технолог Россия
Город-производитель Тюмень
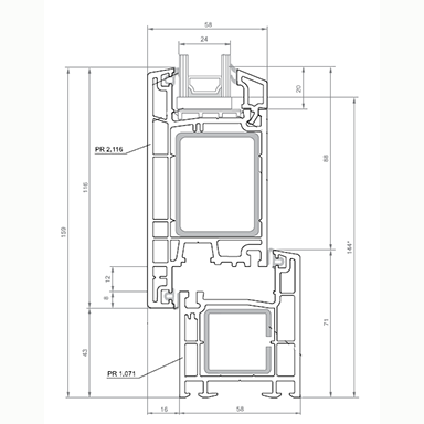
Профиль Proplex Litex 58 (наружное открывание)
Профиль Proplex Litex 58 (наружное открывание)
Сбалансированный и адаптированный к российским условиям профиль классического стиля, не промерзает и отлично держит тепло.
Технические характеристики
Ширина профиля (монтажная глубина) (мм) 58
Цвет профиля молочно-белый
Класс профиля (по толщине внешних стенок) Б
Рецептура ПВХ свинцовая
Варианты открывания наружное
Цвет уплотнителя черный
Страна-технолог Россия
Город-производитель Подольск
Заявка на расчет

Предложение доступно для юридических лиц